Madeleine

architectes epf sia fas

Madeleine

architectes epf sia






Neirvana
Concours pour une nouvelle école à Neirivue

Concours 2019



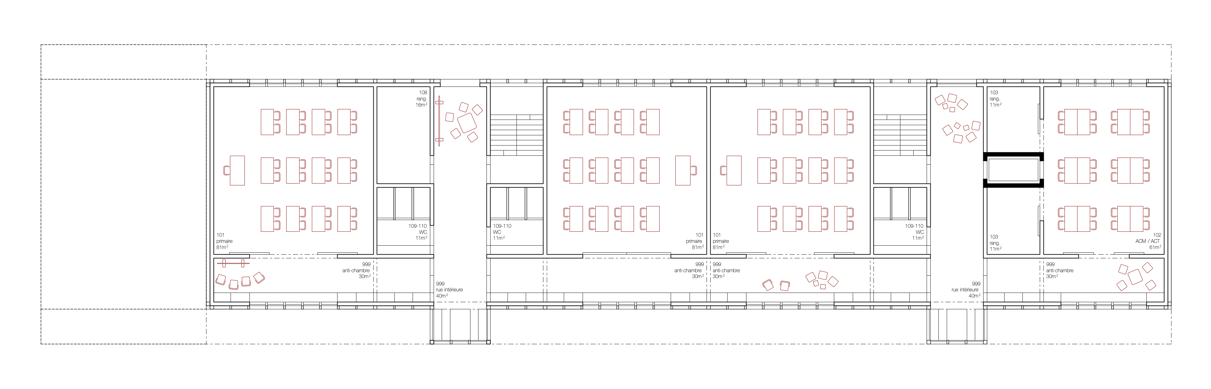
Le projet propose un dialogue avec les perspectives et les frontières physiques à proximité que sont les murs d’enceintes. L’implantation du nouveau bâtiment au sud de la parcelle permet la création d’une place à la tête de l’édifice, orientée sur la vallée et étirée vers le village. Sa morphologie évoque la ferme d’habitation paysanne fribourgeoise. À l'origine de ce principe de configuraiton, le rapport entre la longueur et la largeur de l’édifice était déterminé par le besoin en surface et la nécessité de lumière et d’aération dans les étables, ainsi s'imposent les limites naturelles de l’expansion en profondeur, extensible aux besoins dans sa longueur.


En récupérant une image du passé, en la projetant dans la réalité et en l’étirant à l’échelle de l'école, l'édifice propose une articulation entre l'histoire et le projet. Réinterprétant les larges passages des portes de granges de la morphologie des fermes d’habitation paysanne fribourgeoise, l’édifice est percé perpendiculairement par deux rues extérieures traversantes au rez et s’ouvrant sur le paysage dans les niches habitées aux étages supérieurs. Ainsi, Le bâtiment est perméable visuellement et physiquement et permet de relier directement les différents espaces de jeux extérieurs, les préaux destinés aux enfantines et primaires.


Un projet de Madeleine architectes et François Nantermod








Madeleine — Architectes Sarl ︎ madeleinearchitectes
Architectes EPF SIA ARB.   info@mdln.org