Madeleine

architectes epf sia fas

Madeleine

architectes epf sia






Maison Partagée à Willancourt, Belgique


La « Maison Partagée » - Un nom qui évoque l’identité du projet autant que son histoire. Cette maison, c’était celle des grands-parents, un lieu de rassemblement de générations autour des casseroles sur le feu et de la soupe dans les assiettes creuses.

Les bâtiments sont comme les êtres humains. Ils naissent et se développent ; ils vieillissent, dépérissent et meurent. Ils exposent une certaine adversité face l'influence des événements et des rencontres. Ils passent de la fraîcheur de la jeunesse à la maturité, atteignant parfois la beauté dans leur vieillesse. Ainsi leur identité n'est pas seulement celle qui leur a été donnée à la naissance ; celle-ci reflète tous les changements, ajouts et influences de leur vécu. De cette vie, il serait irrespectueux d'en effacer les marques pour la travestir d’un aspect immaculé ou d'en figer le processus historique de quelque manière que ce soit.

Partant du principe que le bâtiment le plus durable est celui déjà construit. Par-delà une valeur mémorielle, matérielle, environnementale ou économique ; la ressource essentielle de cette construction découlant d’un patrimoine bâti courant des années 1950 est le simple fait d’exister. Si le partage est l’identité du projet, la maison en est son fondement.

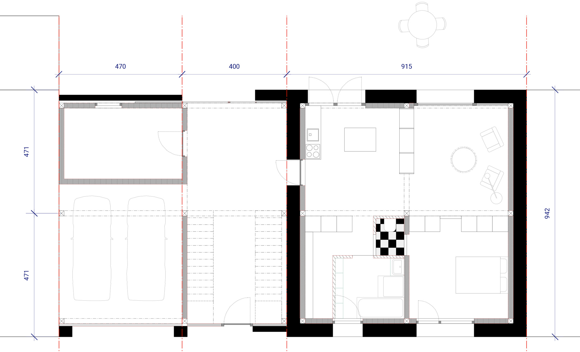
Cette construction est conservée dans son intégrité et purgée du superflu pour accueillir une(deux) nouvelle(s) vie. La « dent creuse » actuelle en sera sa prothèse, assemblées l’une à l’autre par une articulation, la mise en scène du partage et de l’espace intermédiaire comme projet. Cette approche vise à réévaluer les usages et les hiérarchies spatiales afin de renforcer le bien commun.

Ce partage est multigénérationnel. Un logement est inséré dans l’existant de plein pied sur rue, communs et jardin ; Il est destiné pour une personne âgée. Accessible par l’espace multiple, l’étage accueille une habitation familiale, reliant en son sein l’ancien et le nouveau. Au dernier niveau, une chambre d’ami est appropriable au grès d’un monde en mouvement permanent.
 










Madeleine — Architectes Sarl ︎ madeleinearchitectes
Architectes EPF SIA ARB.   info@mdln.org