Madeleine

architectes epf sia fas

Madeleine

architectes epf sia






“TOURNESOL”


Construction d’une caserne de pompiers et d’un P+R

Concours 2023
2ème rang / 2ème prix



Extrait du rapport du jury:


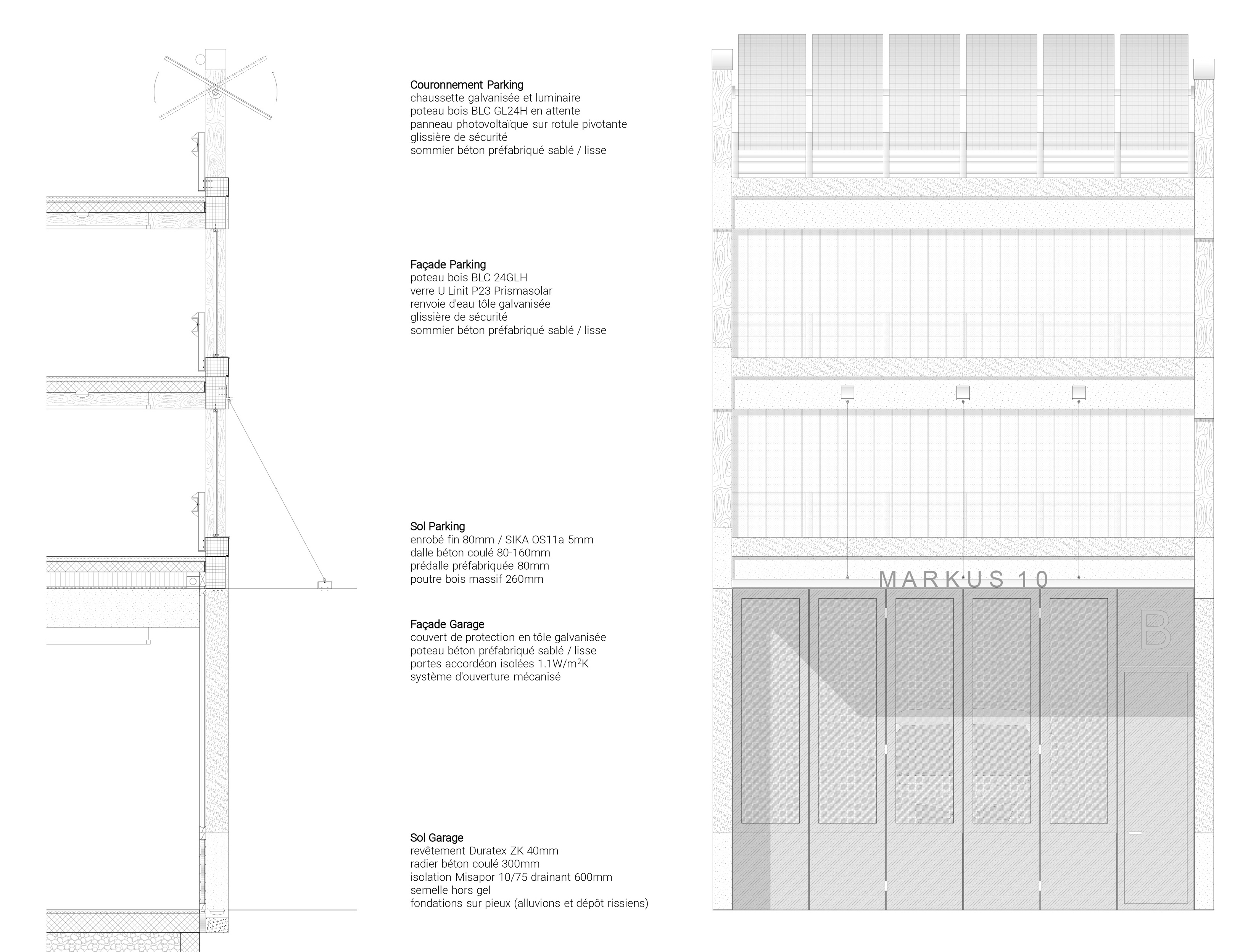
Le projet TOURNESOL propose d’implanter un bâtiment circulaire au centre de la parcelle. La forme prévoit une rampe à pente ascendante régulière qui s'élève jusqu'à une hauteur de 13,80 m et se termine par un niveau de parking ouvert à son sommet. D'un point de vue architectural, le bâtiment se présente comme un corps fermé avec un vitrage translucide et un bord de toit sur lequel sont montés des éléments photovoltaïques mobiles. La typologie démontre un fonctionnement clair et tout à fait adapté à une parcelle noyée dans un environnement hétéroclite du point de vue programmatique et formel. L’extrusion du cercle offre un bâtiment avec une identité́ propre, et un choix formel découlant du programme.

Le jury apprécie le geste fort et pur du candidat, casant les programmes selon une organisation bien définie. Le bâtiment se développe hors sol, sans excavation, et spirale ensuite sur quatre étages. Trois langues viennent s’y accoler et le faire fonctionner, dont un accès piéton en passerelle, menant à une distribution centrale du parking, une rampe véhicules pour le premier étage, ainsi qu’une place de manœuvres pour la caserne de pompiers.

[…]
Le parking est bien conçu. Il se décline uniquement vers le haut, avec des places spacieuses et un sens de circulation unique permettant de voir toutes les places au fur et à mesure de la montée.

[…]
La structure proposée par le candidat se réfère à la construction préfabriquée présente dans la région. Le geste est intéressant et la recherche de dalles bois-béton propose une alternative au tout béton qui semble justifiée.

[…] le jury reconnait la contribution intéressante et les défis relevés par le projet et récompense cette proposition audacieuse et attrayante.


Avec Lüchinger+Meyer, ingénieurs civils et Jean Larivé, expert en protection incendie


Image: Bildbauer








Madeleine — Architectes Sarl ︎ madeleinearchitectes
Architectes EPF SIA ARB.   info@mdln.org